Listing Tools

Listing Courtesy of BHGRE Shore & Country Properties
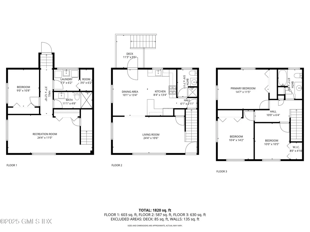
Welcome to this beautifully renovated, sun-filled 4-bedroom, 3-bathroom townhome, designed to include a distinctly separate living area perfect for a guest or in-law! Thoughtfully updated throughout, this spacious home features fresh paint, gleaming hardwood floors, stainless steel appliances, and modern ceiling lighting that creates a warm and inviting atmosphere. The main level offers an open and airy layout ideal for entertaining, with direct access to a covered front porch and private backyard off the kitchen. Upstairs, you'll find three generously sized bedrooms and a full bathroom. The fully finished walk-out basement adds incredible flexibility, featuring a bedroom, bathroom, perfect for guest space, home office, or family room. Also enjoy private laundry room and driveway!

Property Details of 37 Windy Knolls

Property Details

Interior Features

Utilities and Appliances

Community

Other Details

Map Location

Driving Directions

Listing data provided by Greenwich MLS

15.4.6 Participants (and their affiliated licensees, if applicable) shall indicate on their websites that IDX information is provided exclusively for consumers’ personal, non-commercial use, that it may not be used for any purpose other than to identify prospective properties consumers may be interested in purchasing, and that data is deemed reliable but is not guaranteed accurate by the MLS. The MLS may, at its discretion, require use of other disclaimers as necessary to protect participants and/or the MLS from liability. Displays of minimal information (e.g. “thumbnails”, text messages, “tweets”, etc., of two hundred (200) characters of less are exempt from this requirement but only when linked directly to a display that includes all required disclosures. (Amended 5/12)

Hi there! How can we help you?

Contact us using the form below or give us a call.

Send Us A Message:

By providing your name, signature and phone number, you consent to receiving sales calls and texts from or on behalf of Sotheby’s International Realty (and Edward Mortimer) the number provided. Consent to such communications is not a condition of purchasing any property, goods, or services. Message and data rates may apply.

Do not fill in this field:

This site is protected by reCAPTCHA and the Google Privacy Policy and Terms of Service apply.

Hi there! How can we help you?

Contact us using the form below or give us a call.

Send Us A Message:

Do not fill in this field:

This site is protected by reCAPTCHA and the Google Privacy Policy and Terms of Service apply.

Hi there! How can we help you?

Contact us using the form below or give us a call.

Send Us A Message:

Do not fill in this field:

This site is protected by reCAPTCHA and the Google Privacy Policy and Terms of Service apply.

Do not fill in this field:

This site is protected by reCAPTCHA and the Google Privacy Policy and Terms of Service apply.

Do not fill in this field:

This site is protected by reCAPTCHA and the Google Privacy Policy and Terms of Service apply.

Do not fill in this field:

This site is protected by reCAPTCHA and the Google Privacy Policy and Terms of Service apply.

$

Do not fill in this field:

This site is protected by reCAPTCHA and the Google Privacy Policy and Terms of Service apply.